RVK-60 P

416-RVK60
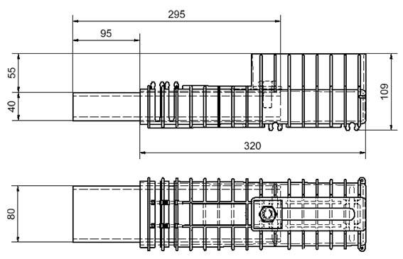
RVK on portaikkojen lepotasolaattojen tuentaan tarkoitettu piilokonsoli, jossa liikuteltava suorakaideputkipalkki siirtää leikkausvoiman seinälle. Konsoli tukeutuu seinään tehtyyn varauskoloon, joka juotosvaletaan työmaalla laatan asennuksen jälkeen. RVK-tuotteilla askeläänen eristys tehdään seinän varauskoloon tai seinän ja laatan liitokseen asennettavilla neopreeniosilla.

Lepotasokannakkeet

Kysy tuotteesta asiantuntijoiltamme

Tuotekuvaukset

Ominaisuudet

RVK-60 P koostuu suorakaideputkipalkista ja kierrätysmuovisesta kotelosta. Sisällä oleva putkipalkki liu’utetaan seinäelementissä olevaan varaukseen elementin asennusvaiheessa. 

Sisäputkipalkin liikuttaminen tapahtuu laatan yläpintaan jäävässä varauskolossa olevan terästapin tai kuusioruuvin avulla. RVK-konsoli voidaan varmistaa asennuksen jälkeen kiilaamalla sisäputki varauskolosta paikoilleen. 

Lepotasokannakkeet lukitaan oikeaan asentoon jälkivalulla. 

Tekniset tiedot

CE-merkintä Kyllä
Talo2000-koodi 221 Terästuotteet
Pyydä tarjous tai kysy lisätietoa

Tiedostot

Käyttöohjeet RVK_TSS_asennusohje_FI.pdf
ETA-hyväksyntä RVK_TSS_ETA_EN.pdf
Suoritustasoilmoitus DOP TSS_RVK_DoP_EN.pdf
Suunnittelijalle

Mitoitusohjelman lataus »

ProdLib-tuotekirjasto »

Komponentit ja lisäraudoituksen työkalu: Tekla Warehouse -tuotekirjasto »