TSS-102

416-TSS102
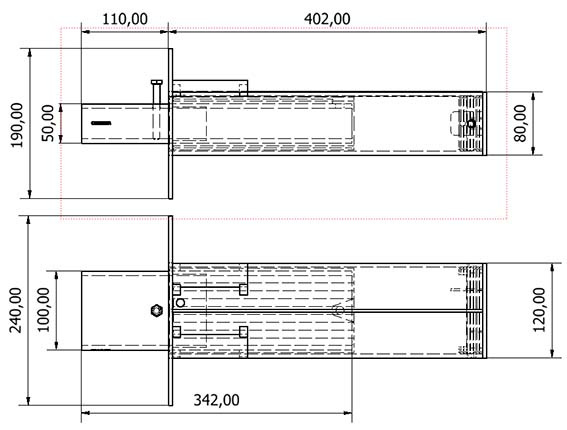
TSS on portaikkojen lepotasolaattojen tuentaan tarkoitettu piilokonsoli, jossa on integroitu askeläänieriste. Liikuteltava suorakaideputkipalkki siirtää leikkausvoiman seinälle. Konsoli tukeutuu seinään tehtyyn varauskoloon, joka juotosvaletaan työmaalla laatan asennuksen jälkeen. 

Lepotasokannakkeet

Kysy tuotteesta asiantuntijoiltamme

Tuotekuvaukset

Ominaisuudet

TSS-102 koostuu kahdesta sisäkkäin asetetusta suorakaideputkipalkista. Sisempi putkipalkki liu’utetaan seinäelementissä olevaan varaukseen elementin asennusvaiheessa. TSS-102 sisältää laipan askeläänen eristämiseen.

Sisäputkipalkki liikutetaan uloimpaan asentoonsa merkkiteippaukseen saakka vetovaijerilla. Tarvittaessa sisäputki voidaan palauttaa alkuperäiseen asentoonsa palautusköyden avulla. Sisäputkipalkki lukitaan asentamalla kuusioruuvi merkkiteippauksen kohdalla olevaan reikään.

Lepotasokannakkeet lukitaan oikeaan asentoon jälkivalulla.

Tekniset tiedot

CE-merkintä Kyllä
Pyydä tarjous tai kysy lisätietoa

Tiedostot

Käyttöohjeet RVK_TSS_käyttöohje_FI.pdf
ETA-hyväksyntä RVK_TSS_ETA_EN.pdf
Suoritustasoilmoitus DOP TSS_RVK_DoP_EN.pdf
Suunnittelijalle

Mitoitusohjelman lataus »

ProdLib-tuotekirjasto »

Komponentit ja lisäraudoituksen työkalu: Tekla Warehouse -tuotekirjasto »